Dispositivo de distribución compacto sellado completamente aislado de la unidad principal del anillo eléctrico SF6 del voltaje medio
Cajas combinadoras solares fotovoltaicas 500V-1500V 20A-630A
Gabinete de aparamenta de red fotovoltaica trifásico de 100-2000kW
Subestación de caja inteligente/compacta de 24 kV (20 kV)El dispositivo de protección de puesta a tierra del punto neutro del interruptor seccionador GW13 producido por Lugao está diseñado para proteger el aislamiento del punto neutro del transformador contra sobretensiones por rayos, sobretensiones de conmutación y sobretensiones de frecuencia eléctrica (transitorias). Lugao cuenta con equipos de producción profesionales y una rica experiencia en exportación, y el inventario que posee se puede entregar rápidamente.
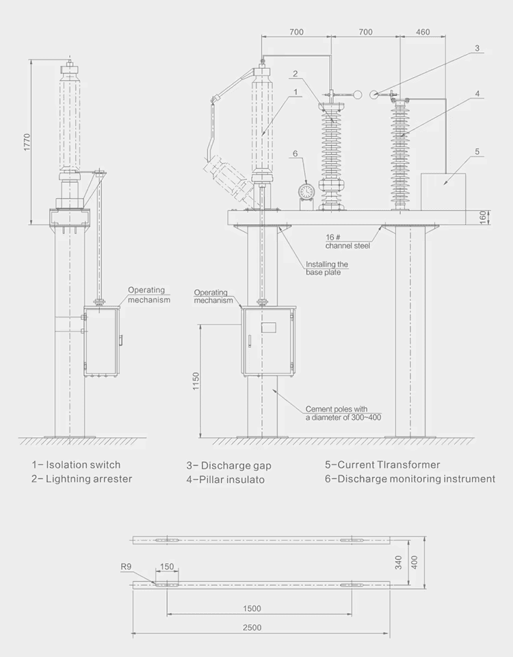
Los dispositivos de protección de puesta a tierra del punto neutro del interruptor seccionador GW13 de Lugao se utilizan principalmente en los circuitos del punto neutro de transformadores de potencia de 110 kV y 220 kV. Protegen el aislamiento del punto neutro del transformador contra daños por sobretensión y permiten que el transformador cambie entre los modos de operación del punto neutro con y sin conexión a tierra. Cuando se requiere protección simultánea contra rayos, frecuencia eléctrica y sobretensiones de conmutación, se puede conectar un espacio y un descargador en paralelo para protección. El protector contra sobretensión de punto neutro serie GW13 es un conjunto completo que integra un seccionador, un descargador de óxido de zinc, un espacio de descarga y un transformador de corriente. Presenta alta capacidad térmica y excelente protección, configuraciones flexibles y facilidad de uso. Se puede seleccionar un diseño de espacio puro o una combinación de seccionador y espacio de descarga para satisfacer las necesidades del usuario.
Especificaciones técnicas del dispositivo de protección GW13
| elemento |
Unidad |
Argumento |
||
| Modelo de producto |
|
Lugao-GW13-110 |
Lugao-GW13-220 |
|
| Tensión nominal |
kV |
110 | 220 | |
| Tensión soportada del neutro del transformador |
Tensión soportada de corte y plena tensión (pico) |
kV |
250 | 400 |
| Frecuencia de potencia de 1 min (valor efectivo) |
kV |
95 | 200 | |
| Interruptor de aislamiento neutro |
Corriente nominal |
A | 630 | 630 |
| Mecanismo operativo |
|
CS14G (manual) o CJ2 (eléctrico) |
||
| Pararrayos de óxido de zinc |
Tensión nominal (RMS) |
kV |
72 | 144 |
| Voltaje de funcionamiento continuo |
kV |
58 | 116 | |
| Tensión de referencia CC de 1 mA |
kV |
103 | 205 | |
| Tensión residual de la corriente de impulso del rayo. |
kV |
186 | 320 | |
| Brecha de descarga |
Rango de distancia del electrodo de separación |
milímetros | 90-150 | 220-320 |
| Rango de voltaje de descarga de frecuencia de alimentación |
kV |
50-83 | 100-166 | |
| Voltaje de descarga por impulso de 1,2/50us |
kV |
120-190 | 250-320 | |
| transformador de corriente |
Tipo |
|
Resina epoxi vertida tipo pilar completamente cerrado 10kv |
|
| Relación de transformación |
|
100/5.200/5.300/5.40015.50015.600/5 |
||

Interruptor de desconexión exterior de 12 KV
Interruptor de desconexión de alto voltaje para exteriores de 132 kV
Interruptor de aislamiento de alto voltaje para exteriores Gw4
Interruptor de aislamiento de alto voltaje para exteriores Gw1-12
Interruptor de aislamiento de alto voltaje para exteriores Gw1-24
Interruptor de aislamiento de alto voltaje para exteriores Gw5